你好,欢迎来到河南诺德设计公司!
24小时业务咨询热线
15039059917
24小时客户服务热线
15039059917
推荐设计师
  • 贺水平

    贺水平

  • 蔡亮

    蔡亮

  • 王俊杰

    王俊杰

  • 张明萧

    张明萧

  • 联系我们
     河南诺德设计公司
    电   话:15039059917
    手   机:15039059917
    网   址:www.sheji368.com
    地   址:郑州市中原区陇海路与桐柏路交叉口凯旋门B座24楼
    当前位置:主页 > 设计案例 > 商业设计 >

    麦田蛋糕店设计

    发布时间:2017-05-28 15:05 浏览   来源:未知

    摘要 项目名称:麦田蛋糕店店设计 项目位置:河南-郑州金水区 项目面积:89平方 蛋糕店设计风格:西式

    • 蛋糕店设计案例
    • 蛋糕店装修效果图
    • 蛋糕店设计方案
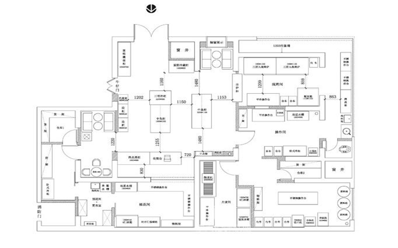
    • 蛋糕店布局图

    案例介绍:蛋糕店有很多个区域,比如,裱花区,收银台,休闲区,展示区,现烤区,想要空间感更强烈一些,比较合理的可以把展示区放在最醒目的位置,里面放休闲区供顾客休息休闲,收银台挨着休闲区,便于收费和宣传新产品,而裱花区和现烤区等制作区,放在最里面,一定要注意的是保持每个区的相关独立性和关联性,还有通风和采光必须合理搭配,别让顾客感到气闷或者不舒服。

    了解河南诺德设计公司更多的案例请访问: 设计案例|河南诺德设计公司是你最佳的选择。咨询电话:15039059917。

    精彩推荐
    中投汇金企业会所设计
    中投汇金企业会所设计
    商会大厦办公室装修
    商会大厦办公室装修
    智远企业会所设计
    智远企业会所设计
    水之韵商贸办公室装修案
    水之韵商贸办公室装修案